KeisarinKelo
Perinteinen kelohonkamökki Rukalla, Kuusamossa - tukikohtasi lasketteluun, vaellukseen ja muihin tunturiseikkailuihin!
Erillismökki âą Sauna âą Luonnon keskellĂ€ âą LĂ€hellĂ€ Rukan palveluita âą LemmikkiystĂ€vĂ€llinen đŸ
Vieraskirjan viestejÀ
Miksi valita KeisarinKelo?
-

Autenttista Pohjoisen tunnelmaa
Kelohonkamökin lÀmpöÀ ja Lapin mökkitunnelmaa, korkeaa tilaa, luonnonkivitakka ja suuret ikkunat jotka tuovat luonnon lÀhelle.
-

Rauhallinen sijainti lÀhellÀ Rukaa
KeisarinKelo sijaitsee rauhallisella Keisarinvaaran alueella mistÀ Rukan alueen kaikki palvelut ovat helposti saavutettavissa.
-

Saunan lÀmpöÀ rauhallisiin iltoihin
UlkoilupÀivÀn jÀlkeen saat nauttia saunan lÀmmöistÀ aidon kelohongan tunnelmassa. Tervetuloa!
TÀtÀ on KeisarinKelo
-
KeisarinKelo on oma, erillinen kelohirsimökki â tehty oikeaan mökkielĂ€mÀÀn. Paksut hirsiseinĂ€t, luonnonmateriaalit ja pehmeĂ€ valo luovat lĂ€mpimĂ€n ja rauhoittavan tunnelman vuodenajasta riippumatta. TĂ€mĂ€ ei ole âkiillotettu resortâ, vaan paikka hidastaa.
-
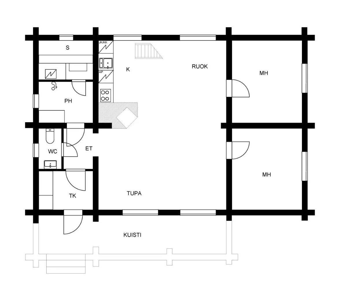
Mökki majoittaa mukavasti jopa 9 vierasta. KÀytössÀ on kaksi makuuhuonetta uusituilla sÀngyillÀ ja laadukkailla vuodevaatteilla sekÀ tilava parvi, jossa on lisÀÀ nukkumapaikkoja. Pohjaratkaisu toimii hyvin sekÀ perheille ettÀ isommallekin seurueelle.
-
Olohuone, keittiö ja ruokailutila muodostavat yhden avoimen ja kutsuvan kokonaisuuden. Korkea tila, suuret ikkunat ja jykevÀt hirret tuovat ympÀröivÀn metsÀn osaksi tunnelmaa. UlkoilupÀivÀn jÀlkeen luonnonkivinen takka kerÀÀ luontevasti porukan yhteen pitkiksi illoiksi.
-
Saunassa nautitaan pehmeistÀ, perinteisistÀ löylyistÀ rennosti omaan tahtiin. Pesutiloissa on suihku ja pesukone. LisÀksi mökissÀ on erillinen sisÀ-WC, tilava eteinen sekÀ kuivauskaappi ulkovaatteille.
-
Keittiö on tĂ€ysin varusteltu ja laitteet ovat ajan tasalla: induktioliesi, uuni, astianpesukone, jÀÀkaappi, pakastin, mikro ja kahvinkeitin. Ruoanlaitto on helppoa ja sosiaalista â nopeasta aamupalasta yhteiseen illalliseen.
-
Tilava terassi avautuu ilta-aurinkoon â tĂ€ydellinen paikka auringonlaskuille ja selkeinĂ€ öinĂ€ revontulille. Aamulla pihapiirissĂ€ saattaa kulkea poroja, ja syksyllĂ€ marjat löytyvĂ€t lĂ€heltĂ€. Luonto on koko ajan lĂ€snĂ€, mutta ympĂ€ristö sĂ€ilyy rauhallisena.
-
KeisarinKelo sijaitsee rauhallisella Keisarinvaara-alueella:
Hiihtohissit: 2,5 km
Ruokakauppa: 2 km
Rukan kylÀ: 4 km
Hiihtoladut: 800 m
Moottorikelkkareitti alkaa mökkitien varresta
TÀmÀ on helppo tukikohta lasketteluun, retkeilyyn ja alueen tutkimiseen ympÀri vuoden.
-
IlmalÀmpöpumppu (viilennys + lÀmmitys)
Internet-yhteys
SÀilytystilaa urheiluvÀlineille
Lapsivarusteet (syöttötuoli, matkasÀnky, turvaportit portaissa)
Lemmikit tervetulleita
-
Jaamme pian blogissamme kĂ€ytĂ€nnön vinkkejĂ€ RukaâKuusamo-alueesta: reittejĂ€, palveluita, kausikohtaisia ideoita ja pieniĂ€ huomioita, jotka tekevĂ€t lomasta sujuvamman.
TÀltÀ nÀyttÀÀ KeisarinKelo
Ruka & Kuusamo - rauhallinen sijainti lÀhellÀ palveluita
KeisarinKelon mökki sijaitsee rauhallisella sijainnilla lÀhellÀ Rukan palveluita. MökiltÀ on helppo liikkua retkeilemÀÀn ja laskettelemaan, ja se on loistava tukikohta monenlaiseen viihtymiseen Rukan alueella.
Kiva tutustua!
Asumme vakituisesti JÀrvenpÀÀssÀ, mutta osan vuodesta vietÀmme Rukan ja Kuusamon kauniissa maisemissa. Viihdymme luonnon rauhassa, rinteessÀ ja reissuissa.
Rukan mökkimme on meille paikka rentoutua, ja nauttia luonnosta, sekÀ laskettelusta. Olemme pyrkineet tekemÀÀn siitÀ sellaisen, jossa myös vieraiden on helppo viihtyÀ ja unohtaa arjen kiireet.
LÀmpimÀsti tervetuloa Keisarinkeloon!
Terkuin,
Essi ja Vili â€ïž
Ota yhteyttÀ
Tarkista mökin saatavuus alla olevasta linkistÀ, tai lÀhetÀ meille viesti! Autamme mielellÀmme sinua suunnittelemaan mahtavan reissun pohjoiseen.